Appartamento DL 2012

SPECIFICHE DI PROGETTO

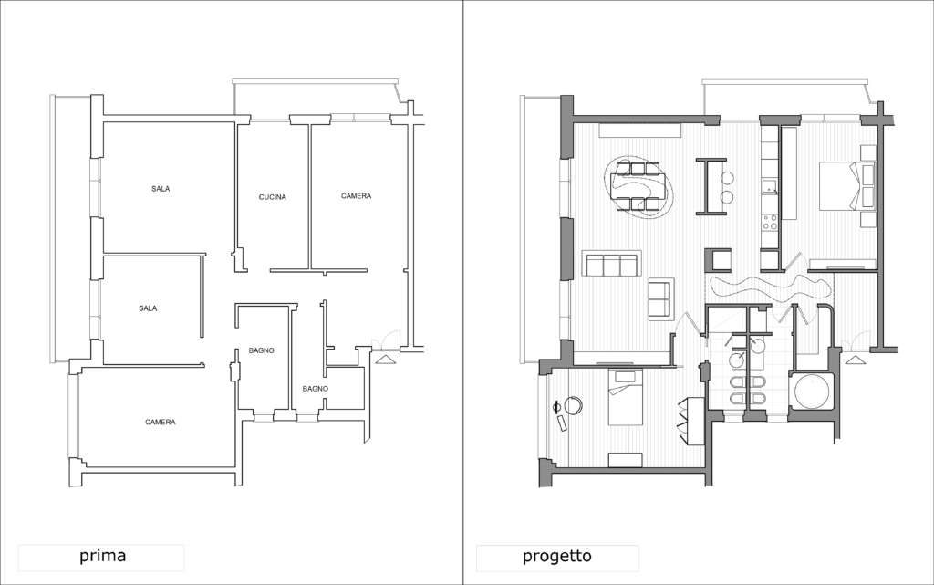
Intervento: ristrutturazione interna / Superficie: 120 mq / Situazione: Completato / Sintesi del lavoro: diversa distribuzione interna e ottimizzazione degli spazi, tramite demolizione di tramezze e ampliamento della zona giorno/ Radiatori: bagno Anthrax / Sanitari Duravit / Rubinetteria Linea Beta / Rivestimenti: Mosa – mosaico Sicis – lastre Laminam ossid. / Pavimentazione in parquet Margaritelli / Illuminotecnica: Rossini – Controsoffitti sagomati con striscia led nascosta

Clicca o tocca le immagini per ingrandirle

GUARDA ALTRI PROGETTI