Vai al contenuto
Home
Lo studio
Realizzazioni
Studi progettuali
Cosa Facciamo
Altri servizi
Pubblicazioni
Contatti
Home
Lo studio
Realizzazioni
Studi progettuali
Cosa Facciamo
Altri servizi
Pubblicazioni
Contatti
Prenota appuntamento
Home
Lo studio
Realizzazioni
Studi progettuali
Cosa Facciamo
Altri servizi
Pubblicazioni
Contatti
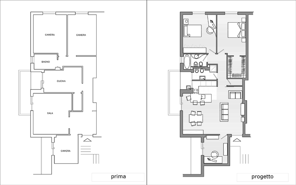
Appartamento BM 2012
SPECIFICHE DI PROGETTO
Testo da inserire descrizione del progetto
Galleria fotografica
Clicca o tocca le immagini per ingrandirle
GUARDA ALTRI PROGETTI
Appartamento BM 2012
Apri progetto >
Appartamento MA 2009
Apri progetto >
Appartamento DS 2020
Apri progetto >
Appartamento NF 2015
Apri progetto >
Appartamento in villa LP 2019
Apri progetto >
Studio Dentistico RA 2020
Apri progetto >
Appartamento SA 2017
Apri progetto >
Appartamento MG 2008
Apri progetto >