Vai al contenuto
Home
Lo studio
Realizzazioni
Studi progettuali
Cosa Facciamo
Altri servizi
Pubblicazioni
Contatti
Home
Lo studio
Realizzazioni
Studi progettuali
Cosa Facciamo
Altri servizi
Pubblicazioni
Contatti
Prenota appuntamento
Home
Lo studio
Realizzazioni
Studi progettuali
Cosa Facciamo
Altri servizi
Pubblicazioni
Contatti
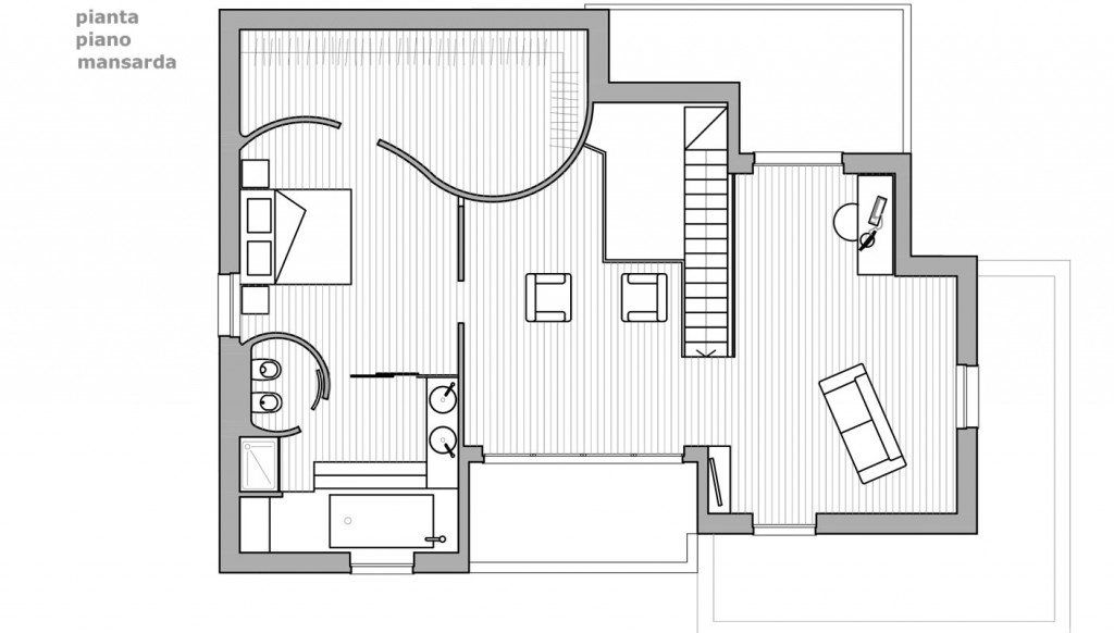
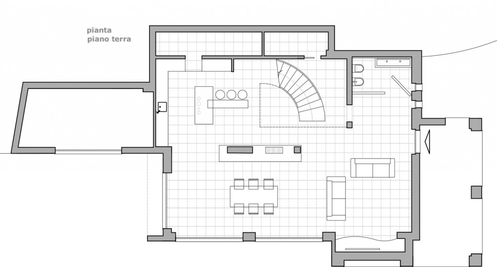
Villa LG 2014
Galleria fotografica
Progetto pubblicato
Clicca o tocca le immagini per ingrandirle
GUARDA ALTRI PROGETTI
Appartamento in villa LP 2019
Apri progetto >
Appartamento MA 2009
Apri progetto >
Villa GC 2015
Apri progetto >
Appartamento MM 2021
Apri progetto >
Appartamento DL 2012
Apri progetto >
Appartamento SD 2021
Apri progetto >
Appartamento FO 2019
Apri progetto >
Appartamento FS 2013
Apri progetto >