Appartamento BP 2012

SPECIFICHE DI PROGETTO

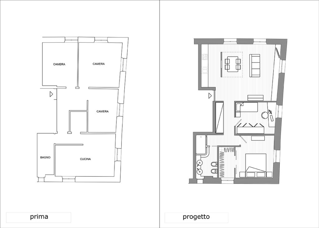
Intervento : Ristrutturazione interna / Supercie : 80 mq / Situazione Completato / Sintesi del lavoro: Modica della distribuzione interna e ottimizzazione degli spazi, attraverso la demolizione di tramezze e l’ampliamento della zona giorno. Valorizzazione degli affacci lato sud (vistamare ) e creazione di cabina armadio.

Aziende di riferimento: Radiatori : Anthrax / Sanitari : Flaminia / Lavabo : LineaBeta / Rubinetteria : Linea Beta / Rivestimenti : Mutina – Casa Più – Le Cere / Pavimentazione in parquet : Margaritelli / Porte : Sololegno

Arredi progettati dallo Studio Bianchi e Bosoni: Libreria in ferro su disegno verniciato – piano lavabo su disegno in acciaio spazzolato – specchio sagomato / Impianti: Condizionamento canalizzato / Illuminotecnica: Artemide , Maison Du Monde.

Clicca o tocca le immagini per ingrandirle

GUARDA ALTRI PROGETTI